Whistler Northlands

4500 Northlands has remained undeveloped for 35 years. Despite several attempts under hotel zoning, no project has moved forward. With housing needs more urgent than ever, it is time for change. Beedie is prepared to unlock this site and deliver new homes and facilitate the renewal of recreation.

Did You Know?

Legal Opinion on 4500 Northlands and Tennis.

  1. The Proposed Development is not prohibited by any encumbrance affecting title to 4500 Northlands.
  2. No encumbrance affecting title to 4500 Northlands requires the tennis facility currently operating on site to remain open and operational upon re-development.
  3. No encumbrance affecting title to 4500 Northlands requires a tennis facility or any other specific public amenity to be constructed as a condition of, or in connection with, any rezoning of 4500 Northlands.

The above opinions are subject to customary legal qualifications, reservations and conditions.

CAC VALUE GAP

Why is Beedie’s Community Amenity Contribution (CAC) Value $47M while the RMOW’s is $57M?

The RMOW valued the hotel financial model using a 1999 employee housing rent of $1.25 per square foot and kept that same rate in today’s analysis. Every other input in the financial model was updated to 2023–2024 figures, except this one. At that rent level, employee housing is not viable because costs far exceed revenues. Our analysis, based on recent Whistler Housing Authority and Whistler Valley Housing Society projects, applied $3.80 per square foot, which accounts for roughly 90% of the valuation gap.

Beedie’s Ongoing Cost to Subsidize the Current Tennis Facility

The current WRC is privately owned by Beedie and is not a public amenity.

  • The WRC requires subsidies from Beedie to operate, and the facility is at the end of its functional life.
  • To date Beedie has subsidized $1.5 million to maintain the facility and ensure it remains operational. Including recent indoor and outdoor court repaving.

Process

The process has taken time, but our commitment has never wavered. Since 2017, we have been shaping a proposal that aims to deliver something meaningful for Whistler. For those interested in what has been done to date, the summary below outlines the history.

Since 2017: Beedie Living’s Housing Commitment

2018: Unfortunately, a rezoning application could not proceed until the Official Community Plan of Whistler was adopted.

February 2020: After RMOW hired a new Planning GM, Beedie submitted a Letter of Intent to rezone the property.

September 2020: RMOW began drafting a formal engagement plan.

February 2021: RMOW proposed a draft schedule with three public engagement rounds. Beedie did not agree to the extended timeline but worked with staff to revise and streamline it.

March 2021: Mayor and Council endorsed a three-phase public engagement process for 4500 Northlands.

April 2021 to June 2021: At RMOW’s request, Beedie presented the project to the Strategic Planning, Recreation and Leisure Advisory, Accessibility and Inclusion, and Transit Advisory Committees.

June 1, 2021: RMOW staff presented draft guiding principles and a public engagement plan to Council

June 15 to July 19, 2021: Public Engagement #1 included an online session with 20 breakout rooms and a questionnaire for residents and non-residents.

August 17, 2021: RMOW staff sought Council’s endorsement of the draft guiding principles

November 4, 2021: Beedie submitted a Hotel Community Amenity Contribution (CAC) model based on a hotel analysis study by a HVS Global Hospitality consultant.

November 24, 2021 to May 16, 2022: Beedie and RMOW met to review the hotel study.

July 6, 2022: At RMOW’s request, Beedie was asked to revise the Hotel CAC financial model to reflect a 1999 rezoning proposal by a previous developer. While this conflicted with the hospitality consultant’s recommendations, Beedie adjusted the model to help advance the process.

From September 2021 to February 2022: Beedie submitted a comprehensive package to RMOW, including a topographic survey, geotechnical report, groundwater study, site disclosure statement, amenities channel stream designation, energy strategy concept, and civil servicing concept plans.

June 13 2022: Public Engagement #2 presented two concepts for community input.

July 2022 to February 21, 2023: Beedie awaited feedback from Open House #2 and RMOW direction on refining the site plan.

February 21, 2023: RMOW staff presented feedback from Open House #2 and sought Council approval to proceed with selecting a preferred site plan.

April 6, 2023: Beedie met with new General Manager of Climate Action, Planning and Development Services

June 7, 2023: Beedie met with RMOW staff to review the updated hotel CAC financial model and revised site concepts based on Phase 2 engagement feedback.

June 14, 2023 – July 20, 2023: Beedie met with RMOW staff for a design and site planning workshop.

August 3, 2023: Beedie submits CAC Rezoning (Housing) financial model.

August 31 & September 11, 2023: Beedie resubmitted a revised Hotel CAC model based on the 1999 Park Georgia application, as requested by staff, and met with RMOW staff and RMOW financial consultant Coriolis Consulting Group.

October 11, 2023: Beedie provides RMOW with supplementary CAC data for both the Hotel and Rezoning financial models.

December 22, 2023: To keep the process moving during CAC financial negotiation, Beedie submitted:

  • Preliminary Green Building Policy Checklist
  • 25% Geometric Civil Design (Off-site)
  • Northlands & Lorimer Intersection Analysis
  • A revised in-progress Architectural Form package

December 27, 2023: RMOW provides a comprehensive response to Beedie’s CAC financial models submitted on July 20 and August 3, 2023.

January 17, 2024: Beedie submits a formal response to RMOW’s feedback on the CAC financial models.

February 2, 2024: Beedie met with RMOW staff to review the Green Building Policy Checklist, 25% Offsite Design, and Intersection Analysis.

February 6, 2024: Beedie and RMOW staff met to review and discuss the CAC financial models.

February 7, 2024 to May 30, 2024: Beedie and RMOW met to finalize CAC negotiations. Beedie continued to disagree with the use of outdated 1999 assumptions in the hotel financial model, including a $1.25 employee housing rate and Phase 1 limits within the hotel, but accepted them as placeholders to keep the process moving.

July 12, 2024: RMOW’s CAC analysis set the value at $57.8 million, based on 75% of full value using peak 2022-2023 Whistler residential market conditions. While Beedie accepted these assumptions at the time of submission, market conditions have since declined, and a reassessment is warranted.

September 26, 2024: At RMOW’s request, Beedie shared data showing a market slowdown since the 2022–2023 peak, supporting a reduction to the CAC based on current conditions.

September 26, 2024: Beedie submits CAC Letter #1 to RMOW, proposing a $46 million contribution, with allocations based on preliminary staff and community engagement feedback.

October 30, 2024: To keep the application moving, Beedie met with RMOW staff to review the 25% civil design for off-site work.

November 21, 2024: In response to RMOW’s feedback, Beedie submits CAC Letter #2 with a refined $46 million proposal and a more detailed proposed amenity package.

January 21, 2025: Following RMOW’s response, Beedie submits CAC Letter #3, increasing the proposed CAC to $47 million and introducing a phased contribution strategy.

March 12, 2025: Beedie submits a revised CAC Letter #3 and highlights added community benefits, including tax revenue, DCCs, a public plaza, on-site upgrades, intersection signalization, accessible housing, and long-term economic impact.

May 27, 2025: RMOW staff present the proposed CAC package to the Committee of the Whole.

June 10, 2025: RMOW staff recommended proceeding with a third round of public engagement.

September 15, 2025: Beedie hosts a open house #1 with information regarding CAC, Site Plan, and legal requirements of the developer.

September 17th, 2025: Beedie hosts a open house #2 with information regarding CAC, Site Plan, and legal requirements of the developer.

2002-2017: Holborn Era

2002: Holborn Group acquired the 5.2-hectare parcel from Park Georgia Realty.

2002–2017: In 2013, Holborn initiated community outreach to gather input on potential development ideas for the site. Despite these efforts, Holborn closed its rezoning file with the RMOW around that time, indicating challenges in aligning their development vision with municipal requirements and community expectations. Holborn considered a rezoning that would allow for market townhouses, apartments, seniors housing, fitness centre, and restaurant and galley

After 15 years of ownership without advancing a concrete development plan, Holborn sold the property to Beedie Living in 2017.

1989–1993: Park Georgia Era

1989: Park Georgia Realty secures development rights to the 5.2-hectare site through a proposal call by the Resort Municipality of Whistler (RMOW) to build summer amenities. The 1990 Tennis Resort Lands Official Community plan (OCP) is established by the RMOW (To note, this has been replaced by the current Official Community Plan of Whistler)

1990: The RMOW received a proposal from Park Georgia for the development of the Bjorn Borg Whistler Resort. This proposal was submitted in response from the call for summer amenities. The proposal contemplated a development of:

  • A 350-room hotel
  • A golf driving range
  • 125 market residential townhomes
  • Employee housing capped at a starting rental rate of $1.25 per square foot
  • Parkland dedication
  • Trails
  • A spa and conference centre
  • A restaurant and lounge
  • Retail shops
  • Landscaping and open space improvements
  • A transit loop and public plaza

Each Year of Delay Means Lost Economic Opportunity for Whistler.

  • $25.9 MILLION IN ECONOMIC BENEFIT ANNUALLY
    In direct, indirect, and induced expenditures. New dollars flowing into local services, restaurants, cafés, and shops post occupancy.
  • $3.6 MILLION PROPERTY TAX REVENUE ANNUALLY
    Property taxes, utilities, parcel taxes, etc.
  • 300 WHISTLER JOBS DURING CONSTRUCTION & SUPPORTING 209 JOBS AFTER COMPLETION
    From trades to restaurants, retail, and services, the project creates steady employment that supports Whistler’s economy now and in the future.
  • $309 MILLION IMPACT ON BC WIDE GDP DURING DEVELOPMENT & CONSTRUCTION
    A significant share of jobs and spending will occur directly in Whistler, particularly through construction activity and local businesses.

The standard approach for estimating economic impacts is through the use of Statistics Canada’s input-model and the associated provincial symmetric input-output tables, which were used to determine the numbers above.

full-economic-impact

Community Amenity Contributions “CAC”

Under the Local Government Act, municipalities can negotiate CACs when a rezoning is requested. Staff and Council work with developers to share 75% of the land value increase through amenities such as housing, childcare, parks, and recreation. In simple terms, the developer gains the right to build, and the community gains benefits in return.

CAC allocation is decided by Council with community input. Beedie has recommended options to facilitate community conversation.

How are CAC’s calculated?

Step One

You take the existing zoning: HOTEL, residential, auxiliary uses and determine its residual land value.

Step Two

Determine the residual land value for a residential community at 4500 Northlands, which is planned to include townhomes, apartments, and commercial uses.

Step Three

Hire expert third-party consultants to establish the inputs used to determine hotel and residential residual land values.

Step Four

Calculate the difference between Step One and Step Two, then take 75% to determine the CAC Value.

Did You Know?

We hired financial experts to negotiate the CAC.

  • Coriolis Consulting Corporation was hired by the RMOW to provide real estate analysis on urban land economics and financial modeling.
  • Triple Beam Advisors was hired by Beedie to prepare the complex financial models for a hotel and residential community.
  • HVS Global Hospitality Services was hired to confirm hotel assumptions and valuations.
  • BTY Construction Cost Consultants was hired to confirm construction numbers.
  • Webster Engineering was hired to confirm civil and infrastructure costs.
  • The negotiation between the RMOW and Beedie (with our expert consultants) took two years: 2023-2025.
  • The data used in the calculations is predominately from 2023.

Did You Know?

During Phase 2 Engagement in 2022, the community’s top amenity priorities were:

Phase 2
Engagement Summary

Employee Restricted Housing

Racket Sports Facility

Community Spaces: Childcare, Seniors Space, Commercial Healthcare Space

Optimize density on the site to include resident restricted non-market housing

How Beedie
Responded

Up to 70 Units of Employee Housing On-site

Proposed $10M towards Recreation

An on-site Daycare, on-site Versatile Community Space, Commercial Workspaces, Healthcare Facility Repurposed

Dedicated Employee Housing Building

Total Community Benefit

Below are the suggested CAC items, plus Added Benefits Beedie is providing regardless of CAC allocation.

The final decision on the CAC items rests with Council, but your feedback is crucial. Items could include all of these, a select few, or other priorities identified by the community. Your input will help ensure new homes, jobs, economic benefits, and amenities move forward without delay.

CAC: Equity to Build Up to 70 Units of Employee Housing On-Site

As a suggested Community Amenity Contribution valued at $14.5 million, up to 70 homes in this development are proposed for Whistler’s local workforce.

CAC: $10 Million Investment in Recreational Facilities

It is suggested that $10 million be contributed to the RMOW for off-site recreational facilities, supporting active living and community connection.

CAC: Healthcare Facility

A new healthcare building is proposed off-site, launching as a sales centre and later converting into a healthcare space for offices or medical visits. This flexible approach addresses Whistler’s growing need for accessible health services, subject to discussions with the RMOW and Vancouver Coastal Health.

CAC: $5 Million Community Investment Fund

It is suggested that a $5 million cash contribution be made to the RMOW, with Council determining its use. The contribution could create a fund for local businesses and community groups to apply for grants, or support priorities such as Whistler Museum upgrades, Valley Trail extension to Cheakamus, Seniors Living, and other community-identified needs.

CAC: 13.5 Acres of Parkland for the Community at 4700 Blackcomb Way

A recent appraisal valued the 13.5-acre parkland at 4700 Blackcomb Way at $4 million.

CAC: Versatile Community Space On-Site

It is suggested that the employee housing building include a versatile community space to support seniors programs, recreation, arts, and other community needs.

CAC: On-Site Childcare Facility

A new childcare facility for 28 children could be included on the ground floor of the employee housing building, providing families with convenient access to childcare.

CAC: Compact Commercial Workspaces

Compact, efficient workspaces could be included to help lower rent costs and support local businesses and entrepreneurs in Whistler’s growing creative and service economy.

CAC: Cultural Connector Enhancement

Enhancements to the Cultural Connector could add new points of interest and strengthen connections to the Squamish Lil’wat Cultural Centre. These improvements will enrich Whistler’s cultural experience.

CAC: Public Art Celebrating Whistler’s History

A new public art piece celebrating Whistler’s heritage could anchor the on-site plaza, creating a vibrant and inspiring focal point.

Added Benefit: Public Plaza

A new neighbourhood sized public plaza will anchor the development, offering a welcoming space that fosters connection and reflects Whistler’s character.

Added Benefit: Signalization of Lorimer and Northlands

A new signalized intersection at Lorimer and Northlands will improve safety, traffic flow, and access for all users, enhancing connections to the development and surrounding amenities.

Added Benefit: Infrastructure Upgrades

Off-site infrastructure upgrades will improve water, sewer, and road networks to support the development and broader community. These enhancements will strengthen essential services and benefit both new and existing residents.

Added Benefit: Accessible Housing

The development will include accessible homes to support comfortable, independent living for people of all abilities, fostering a more inclusive community in Whistler.

Added Benefit: New Restaurant and Café

Right-sized commercial space will be provided to support the surrounding neighbourhood and attract residents from across Whistler. This space is envisioned as a lively and welcoming destination that could include a neighbourhood restaurant, a cozy café, and other community-focused offerings. The commercial spaces are intended to be focused on businesses that support the growth of Whistler.

Added Benefit: $3.6 Million in Annual Property Tax Revenue for RMOW

Once complete, the development will generate approximately $3.6 million in ongoing property tax revenue for RMOW, supporting essential services and long-term community priorities.

Added Benefit: Annual $25.9 Million in Economic Impact Post-Completion

In direct, indirect, and induced expenditures. New dollars flowing into local services, restaurants, cafés, and shops post occupancy.

Added Benefit: Significant Job Creation while Supporting Local Workers

This project will create 300 construction jobs in Whistler and support 209 permanent jobs after completion. From skilled trades to restaurants, retail and services, it will generate steady employment that strengthens Whistler’s economy now and in the future.

What This Means for Whistler

The total community benefit is actually LARGER.

CACs

70 Units of Employee Housing

13.5 Acres of Parkland $10M Towards Recreation

$5M Towards a Community Investment Fund

Daycare

Commercial Workspaces

Public Art

Versatile Community Space

Enhancing Cultural Connector

Healthcare Facility Repurposed

PLUS

Added Benefits

280-300 New Homes

New Public Plaza

New Restaurant & Cafe

Intersection Signalization at Lorimer and Northlands

Infrastructure Upgrades

Job Creation

Property Tax Revenue

Economic Benefit during construction

Annual economic impact after completion

EQUALS

+$200M
In Community
Benefits

Did You Know?

4700 Blackcomb Way is being suggested as a CAC benefit.

13.5 Acres of Parkland for the Community

4700 Blackcomb Way is zoned as RR4 Zone, which allows uses like:
Recreation, School, Hostel, Playground, and Public Institutions

However, there are encumbrances that restrict development of any kind.

Covenant BN312727, which is a flooding covenant in favour of the RMOW and the Province of British Columbia that permits only a golf practice facility to be constructed on 4700 Blackcomb if certain conditions are met.  Covenant BN312727 may be modified or discharged by the RMOW and the Province.

Development Plan

Here’s how we responded to Phase 2 engagement feedback from the community.

  • Neighbourhood Café, where you can grab a coffee and a pastry.
  • Restaurant with a rooftop patio with views of Blackcomb and Whistler Mountain.
  • Townhomes with at grade parking.
  • Apartment buildings with a mixture of unit types.
  • Residential Amenities focused on wellness.
  • Neighbourhood Plaza that feels comfortable and approachable.
  • Valley Trail connecting to the site.
  • Signalizing the intersection at Lorimer and Northlands for safety.

Did you know? The townhomes are thoughtfully situated beside our neighbours’ townhomes.

Did you know? Apartment buildings will be located next to Highway 99 nestled beside 80-100 ft trees.

Did You Know?

We are not asking for extra bed units or density.

Covenant BM347062: allows the developer to use maximum of 837 Bed Units

Did You Know?

The existing Hotel zoning requires 27 on-site employee housing units.

What is Beedie proposing in Residential Community?

UP TO 70 UNITS OF EMPLOYEE HOUSING ON-SITE

Did You Know?

  • We engaged EKISTICS Town Planning & Architecture to design this new residential community. Their team helped shape Whistler Village North and led the master plan for Whistler’s Athletes Village.
  • We hosted site walks with our neighbours and adjusted the site plan based on their feedback.
  • Hotel zoning allows a building up to a maximum of 116ft. The Fairmont Chateau is 166ft. We are not currently proposing any buildings above 166ft.

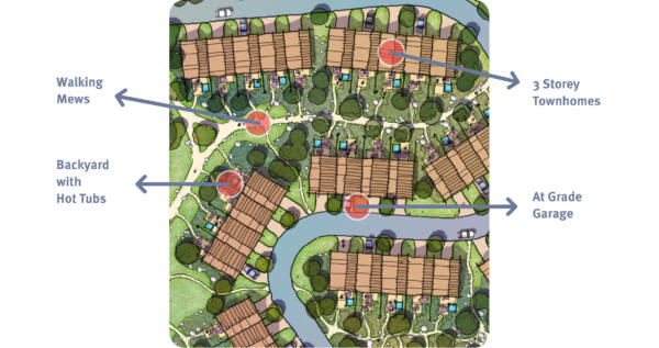
Proposed Site Plan

Proposed Site Plan
1

Townhomes

2

Apartments

3

Residential Amenity

4

Employee Housing, Daycare, Workspaces, and Community Space

5

Plaza, Restaurant, Cafe

6

Site Entry

7

Highway 99

8

Montebello 1

9

Montebello 2

Neighbourhood Public Plaza

Neighbourhood Public Plaza

Townhomes

Townhomes

Apartments

Apartments

About — Built for good

Beedie Living: A True Community Builder

Beedie Living is the residential arm of Beedie, known for creating well-designed communities that prioritize livability, long-term value, and a strong sense of place. From family homes to mixed-use hubs, each project reflects a commitment to quality and community.

Backed by over 70 years of experience, Beedie is one of BC’s most respected integrated real estate companies, delivering impact through industrial, residential, and capital services that go beyond buildings.

Philanthropy & Community Impact

Beedie has donated nearly $135 million to over 350 organizations across BC, supporting healthcare, housing, education, and community services. Key contributions include Burnaby and Delta hospitals, BC Children’s Hospital, and the YWCA. Beedie Luminaries, launched with a $50 million commitment, has awarded over $46 million in scholarships to students. From buildings to philanthropy, Beedie is dedicated to building stronger communities across the province.

Get In Touch!

If you have questions, or would like more information about the project, please email us at info@4500northlands.com.

Frequently Asked Questions

What is the proposal?

The total number and mix of homes are preliminary and subject to refinement. Delivering this composition of homes is what generates the CAC benefit value through land lift.

The vision for 4500 Northlands is to create a complete mixed use neighbourhood that reflects Whistler’s character while meeting the evolving needs of the community.

The project thoughtfully delivers a diversity of homes, local serving commercial including space for a café and a small scale restaurant, a new childcare facility, and public spaces in a walkable setting that connects seamlessly with Whistler Village and surrounding neighbourhoods.

Proposed Housing Mix
Total Homes: Approximately 280-300
Employee Housing: Up to 70* units
Ground Oriented Townhomes: 60-65
Condominiums: 220-230

At its core, the vision is about creating a place where people live, gather, and engage. It aims to enhance the everyday experience for both residents and visitors while contributing meaningfully to the long term success of Whistler.

What is a Community Amenity Contribution (CAC)?

A Community Amenity Contribution, or CAC, is a voluntary contribution made by a developer when land is rezoned. Rezoning can increase the value of land by allowing more homes, greater height, or new uses. To ensure the community shares in that added value, municipalities may negotiate a contribution from the developer under the Local Government Act.

CACs help fund things the community needs, such as childcare, affordable housing, parks, recreation facilities, cultural spaces, or public realm improvements. The amount is based on the increase in land value from the rezoning, often called the land lift. Municipal staff and the developer discuss options, and Council makes the final decision on how the contribution is allocated.

This process ensures that as growth happens, part of the benefit is returned to the community.

How will a CAC be generated for this project?

This development proposes a Community Amenity Contribution (CAC), which will be allocated to the Resort Municipality of Whistler to fund shared civic amenities.

In the case of this development, the CAC is calculated by determining the land value under the existing hotel zoning, as if a hotel were built today, and comparing it to the land value under the proposed residential development that aligns with the RMOW Official Community Plan. The difference between these two values, known as the land lift, forms the basis of the contribution.

How will CAC funds be allocated?

To begin the discussion on community amenities, Beedie has proposed a package of potential benefits informed by feedback received during Phase 2 engagement. The final decision on how the contribution is allocated rests with Council.

For this rezoning, Community Amenity Contributions are being negotiated and determined. This process has delayed new homes, jobs, and amenities. Community input is crucial to help Council provide clear direction so Whistler can move forward.

  • 13.5 acres of parkland at 4700 Blackcomb Way
  • Up to 70 units of employee housing on site
  • $10 Million investment in off-site recreational facilities
  • $5 M cash for a community investment fund to fund future community needs
  • New childcare facility on-site
  • Versatile  community space (uses could include: seniors programs, childcare programs, arts programs, and other community needs)
  • Commercial Workspaces
  • Public art celebrating Whistler’s history
  • Enhancements to the cultural connector
  • Repurposing a $5M sales centre for a healthcare facility

Why is Beedie’s Community Amenity Contribution ”CAC” Value $47M while the RMOW’s is $57M?

The RMOW valued the hotel financial model using a 1999 employee housing rent of $1.25 per square foot, carried forward into today’s terms. Every other input in the financial models was updated to 2023–2024 figures, except this $1.25 rate. At that rent level, housing is not viable because costs far exceed revenues. Our analysis, based on recent Whistler Housing Authority and Whistler Valley Housing Society projects, applied $3.80 per square foot, which explains roughly 90 % of the valuation gap. 

Are proposed Community Amenity Contributions open to adjustment?

Yes, the allocations are adjustable. Beedie has suggested a range of potential amenities as a starting point, but the final package may include any of the items proposed, a selection of those items, or other community benefits not currently listed. The final decision on which amenities are delivered, and in what form, rests with staff and Council. Their decisions are guided by community priorities, which is why we are seeking your feedback at the upcoming public open houses on September 15 and 17.

What happened to the previous application? Wasn’t there supposed to be a hotel and a tennis facility here?

This site was initially granted development rights for a resort more than 35 years ago, in 1990, through a proposal call by the Resort Municipality of Whistler (RMOW). The proposal call was for “a substantial development that would contribute to achieving Whistler’s vision as a world class, four season resort community.” A number of development concepts, including an application from a previous landowner to build a new tennis facility on site, were initiated over the years but never brought to completion. It is clear the current zoning is unworkable.

For years, the site has remained undeveloped except for the existing tennis facility, which is privately owned. The community has evolved and grown significantly since the original zoning. The planning process being undertaken today is intended to align with current community needs and priorities.

Where are you in the planning process?

A completed rezoning application has not been submitted to the Resort Municipality of Whistler (RMOW). Given the significance of this site, the RMOW, together with Beedie Living, are undertaking an enhanced rezoning process, with multiple opportunities for community input. Upcoming opportunities for community input include:

Open House #1
Date: Monday, September 15th, 2025
Time: 5:00pm – 7:00pm
Location: Whistler Conference Centre, Garibaldi Room
4010 Whistler Way, Whistler, BC

Open House #2
Date: Wednesday, September 17th, 2025
Time: 3:30pm – 5:30pm
Location: Myrtle Philip Community Centre, Millar Room
6195 Lorimer Road, Whistler, BC

When will construction start? How long will construction take?

This project represents a significant economic opportunity for Whistler. At full buildout, it is expected to support approximately 209 ongoing jobs and generate $25.9 million in annual economic impact. During construction, the project will create up to 300 jobs, providing immediate benefits to the local economy.

Our preference is to move to a sales launch as soon as possible, followed by the start of construction. The exact timing will depend on the outcome of the rezoning process and subsequent municipal approvals. The project is intended to proceed efficiently by leveraging economies of scale and existing construction resources. While full buildout may take approximately six to eight years, multiple phases are expected to advance concurrently, subject to market conditions. Advancing the project in a timely manner is essential to ensuring that these economic benefits and job opportunities are realized.